$ 550,000
–
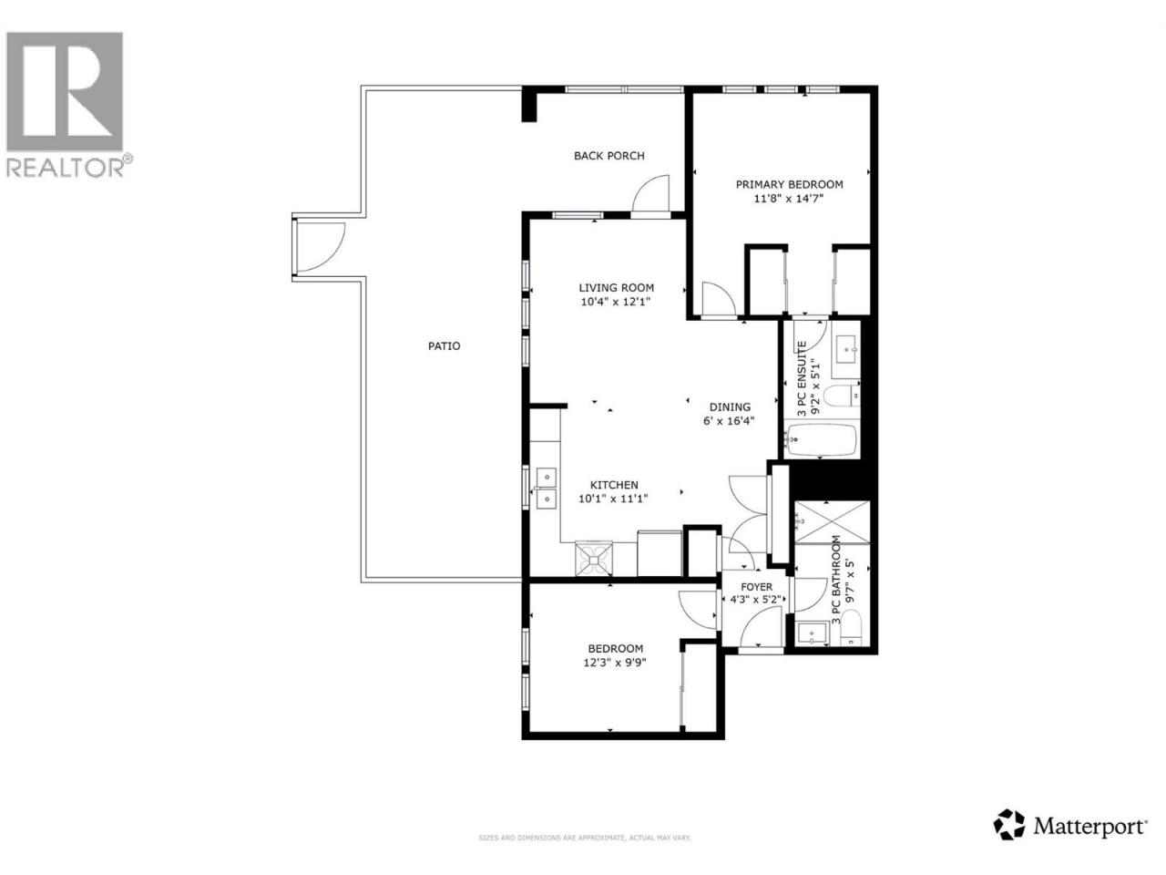
#115 1800 Richter Street
This listing presented by
Lorne Ayers
. Contact Lorne by phone:
(250) 860-1100
or email direct
here
.
Overview
Print
Download
Contact Agent
Listing Info
Area:
Kelowna
Property Type:
Single Family
Ownership:
Strata
MLS® Number:
10372946
Bedroom:
2
Bathroom:
2
Year Built:
2019
Listing Status:
Active
List Price:
$ 550,000
Contact Agent
Download
Print