$ 1,195,000 #86 53305 RGE ROAD 273

This listing presented by Lorne Ayers. Contact Lorne by phone: (250) 860-1100 or email direct here.

Listing Info

Area: Rural Parkland County
Property Type: Single Family
MLS® Number: E4462481
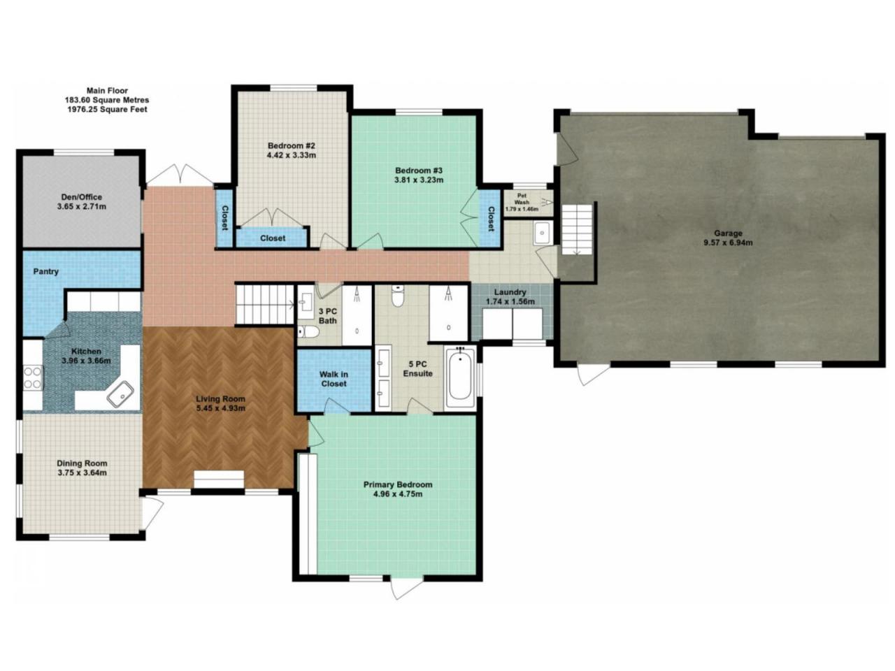
Bedroom: 5
Bathroom: 5
Year Built: 2007
Lot Size: 1.04
Listing Status: Active
List Price: $ 1,195,000

Place Nearby (within radius 1.5 km)



5 BR / 5 BA Single Family – Rural Parkland County

Exceptional Executive Acreage in Prestigious Atim Creek! Just minutes North of Town, this 5-bed + den custom-built bungalow has been beautifully renovated. The updated kitchen features European cabinets, quartz counters, island & a huge new pantry. Ample natural light, a fireplace & vaulted ceilings add elegance to the open main living space. Large windows in the living and dining rooms offer a treed view of the property. The primary suite is HUGE, offering a gorgeous new 5-pc ensuite, walk-in closet, fireplace and deck access. Two additional beds, den, laundry & dog wash complete the main floor. The finished lower level has a family/games room with fireplace and wet bar, 4th & 5th beds (both with ensuites), media room and three more bathrooms. The huge deck is perfect for backyard entertaining, and the lower level walks out to a large, sheltered patio. Gather around the fire pit in the private, treed yard. Parking is never a problem thanks to the oversized heated triple garage. Just 12 min to Edmonton! (id:6769)

Construction Info

Interior Finish: 1976
Parking: 7

Rooms Dimension

Listing Agent:

Claude Gaboury
(780) 982-5969

Brokerage:

RE/MAX Elite
(780) 406-4000
MLS - Realtor Logo