$ 1,099,000 1721 9 Street Southeast

This listing presented by Lorne Ayers. Contact Lorne by phone: (250) 860-1100 or email direct here.

Listing Info

Area: Salmon Arm
Property Type: Single Family
Ownership: Freehold
MLS® Number: 10367508
Bedroom: 3
Bathroom: 1
Year Built: 2025
Lot Size: 0.16
Listing Status: Active
List Price: $ 1,099,000

Place Nearby (within radius 1.5 km)



3 BR / 1 BA Single Family – Salmon Arm

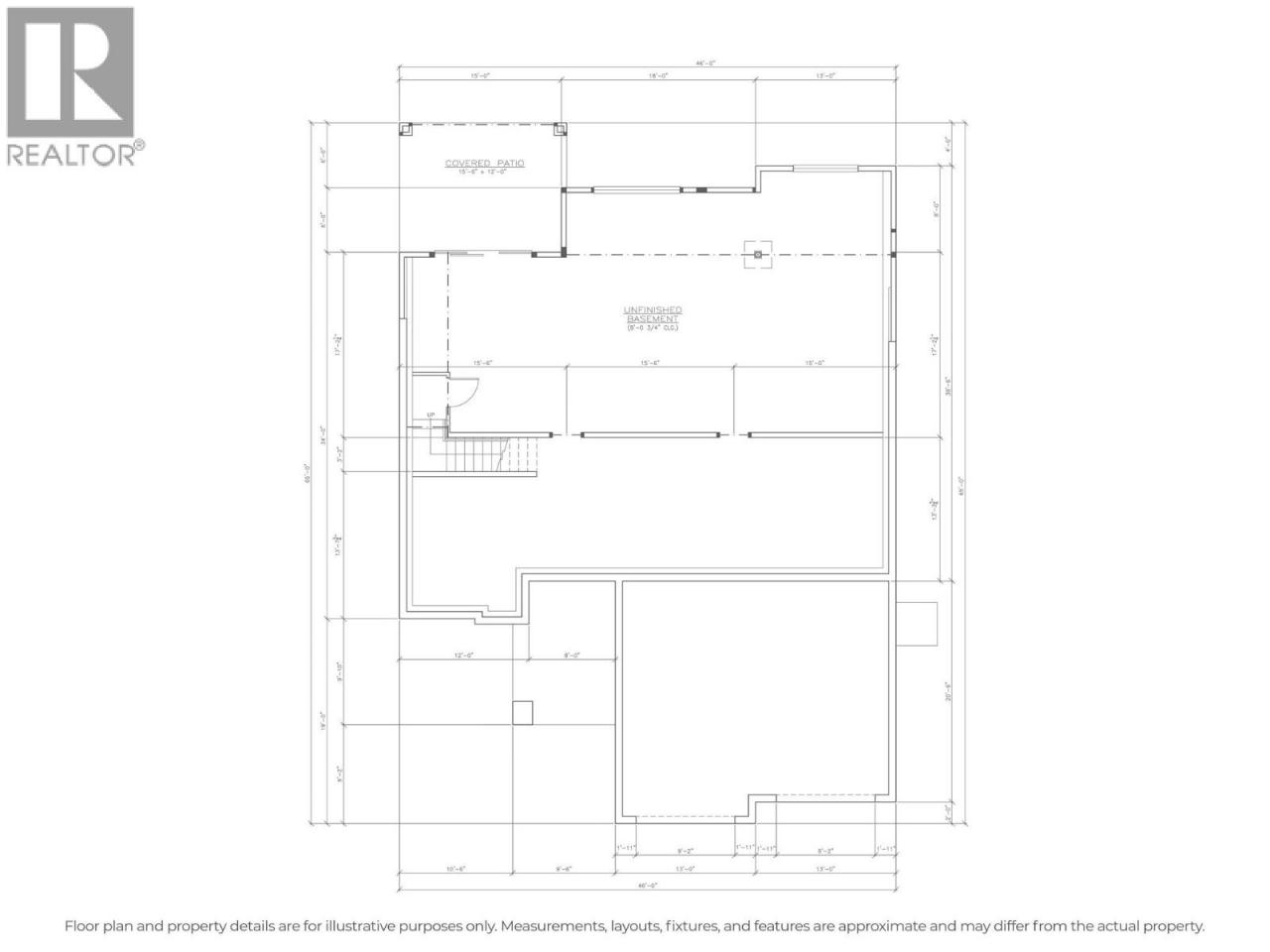
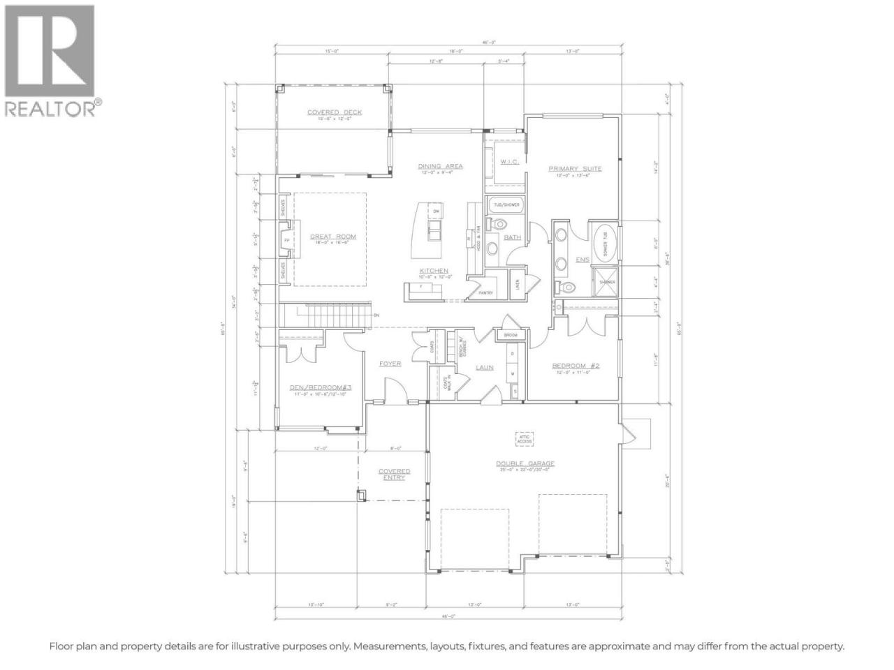
This new lakeview home, crafted by Edge Craft Construction, is located in the new ""Ridge at Hillcrest"" development. With 3 spacious bedrooms, this 1,600 plus square foot main level offers open concept living with plenty of natural light. The full unfinished basement provides many options whether you're looking to add extra bedrooms or create a legal basement suite, bringing the total living space to over 3,200 square feet. The main floor will be finished to the highest standards, featuring 9' ceilings throughout, a custom kitchen with solid surface countertops, and large, covered lakeview deck. Large windows flood the home with light, and the master suite includes a walk-in closet and a luxurious full ensuite. Outside, you'll appreciate the durability of hardi-board siding, a concrete driveway, and a double garage. This home offers the perfect combination of modern design, functionality, and an incredible location! (id:6769)

Construction Info

Interior Finish: 1657
Sewer: Municipal sewage system
Parking Covered: 2
Parking: 2

Rooms Dimension

Listing Agent:

Craig Shantz
(250) 832-7051

Brokerage:

RE/MAX Shuswap Realty
(250) 832-7051
MLS - Realtor Logo