$ 13 #202 5000 Silver Star Road

This listing presented by Lorne Ayers. Contact Lorne by phone: (250) 860-1100 or email direct here.

Listing Info

Area: Vernon
Property Type: Industrial
MLS® Number: 10367581
Listing Status: Active
List Price: $ 13

Place Nearby (within radius 1.5 km)



0 BR / 0 BA Industrial – Vernon

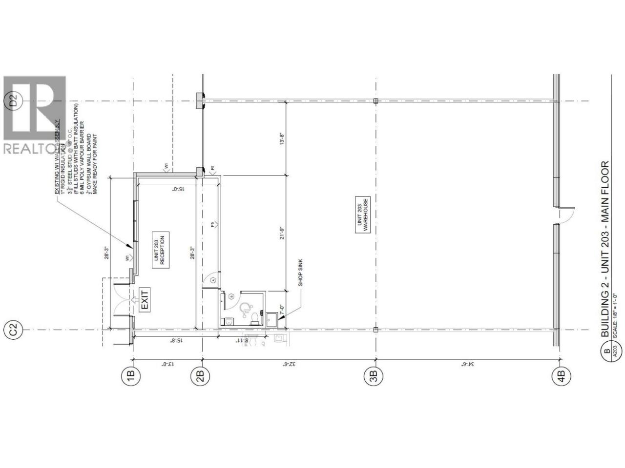
Unit #202 at Silver Star Gateway Business Park offers approximately 3,329 square feet of open service commercial warehouse space, with the potential to add a mezzanine or second floor. The unit features one exclusive grade-level loading door (14' x 12'), 24-foot clear ceiling height, motion-sensored LED lighting, and suspended gas-forced heating. This unit also includes a built-in office/showroom and one washroom, providing a functional layout for a variety of business needs. The property benefits from excellent exposure to Silver Star Road and offers ample onsite parking. Available for immediate occupancy. (id:6769)

Construction Info

Interior Finish: 3329
Sewer: Municipal sewage system

Rooms Dimension

Listing Agent:

Jason Wills
(250) 300-5477

Brokerage:

Venture Realty Corp.
(778) 484-5322
MLS - Realtor Logo