$ 16 #101 371 ALEXANDER Street

This listing presented by Lorne Ayers. Contact Lorne by phone: (250) 860-1100 or email direct here.

Listing Info

Area: Salmon Arm
Property Type: Retail
MLS® Number: 10369448
Listing Status: Active
List Price: $ 16

Place Nearby (within radius 1.5 km)



0 BR / 0 BA Retail – Salmon Arm

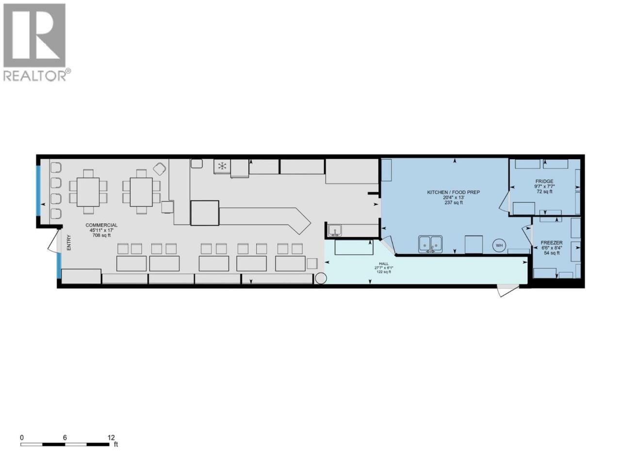
Prime location! This 1,387 square foot retail space is situated in the heart of downtown. Formerly operated as a bistro/cafe, it features a walk-in cooler and freezer, coffee bar and food prep area, spacious seating/dining area, and kitchen space ready for your finishing touches. Access to shared washrooms and directly front Alexander Street allowing for prime exposure and foot traffic. Move in immediately and customize the kitchen for your food service business or adapt the space for a variety of other potential uses. A great opportunity to start your business in a prime spot downtown Salmon Arm. (id:6769)

Construction Info

Interior Finish: 1387
Sewer: Municipal sewage system

Rooms Dimension

Listing Agent:

Craig Shantz
(250) 832-7051

Brokerage:

REMAX Shuswap Realty
(250) 832-7051
MLS - Realtor Logo