$ 735,000 3484 Parklane Road

This listing presented by Lorne Ayers. Contact Lorne by phone: (250) 860-1100 or email direct here.

Listing Info

Area: West Kelowna
Property Type: Single Family
Ownership: Freehold
MLS® Number: 10367591
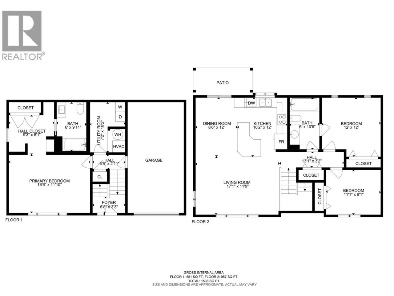
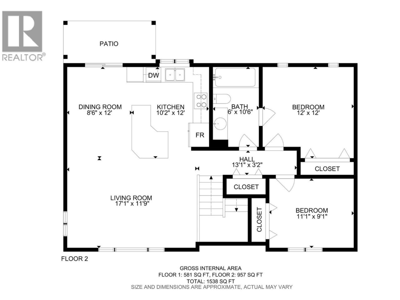
Bedroom: 3
Bathroom: 2
Year Built: 1987
Lot Size: 0.23
Listing Status: Active
List Price: $ 735,000

3 BR / 2 BA Single Family – West Kelowna

Welcome to this immaculate 3-bed, 2-bath gem tucked away in the heart of Glenrosa! Fully renovated from top to bottom down to the plumbing, this home offers a functional layout, stylish finishes, and exceptional outdoor living. Step inside to a bright and airy living room, where natural light pours through the vinyl windows. The modern kitchen shines with stainless steel appliances and fresh contemporary touches—perfect for cooking and hosting or simply enjoying your morning coffee. The main level features two comfortable bedrooms and a refreshed full bathroom with new flooring including a convenient cheater-ensuite layout. Updated trim and new doors throughout the home add to its crisp, clean aesthetic. Outside, your own park-like retreat awaits. The fully fenced backyard boasts mature landscaping, a charming fountain, and plenty of space for relaxing, entertaining, or letting the kids run free. The single attached garage offers secure parking and extra storage. This move-in-ready beauty is a wonderful opportunity to own a charming home in a peaceful, well-established neighbourhood. Easy to love—and ready when you are! (id:6769)

Construction Info

Interior Finish: 1538
Flooring: Mixed Flooring,Vinyl
Sewer: Municipal sewage system
Parking Covered: 1
Parking: 1

Rooms Dimension

Listing Agent:

Dallas Crick
(250) 864-7874

Brokerage:

Chamberlain Property Group
(778) 755-1177
MLS - Realtor Logo