(250) 860-1100
Home
About Lorne
Testimonials
Newsletters
Listings
Buyers
9 Reasons to Buy
Buyer Tips
Condos vs Houses
First Time Buyers
Home Buying Process
Mortgage Terminology
Purchasing Costs
Sellers
For Sale by Owner
Moving Checklist
My Home’s Worth
Seller Tips
When Will It Sell?
FREE Home Evaluation
Blog
Contact
$ 679,900
–
2716 EDGEWATER Crescent
This listing presented by
Lorne Ayers
. Contact Lorne by phone:
(250) 860-1100
or email direct
here
.
Overview
Print
Download
Contact Agent
Listing Info
Area:
Prince George
Property Type:
Single Family
Ownership:
Freehold
MLS® Number:
R3074474
Bedroom:
1
Year Built:
2026
Lot Size:
3657
Listing Status:
Active
List Price:
$ 679,900
Contact Agent
Download
Print
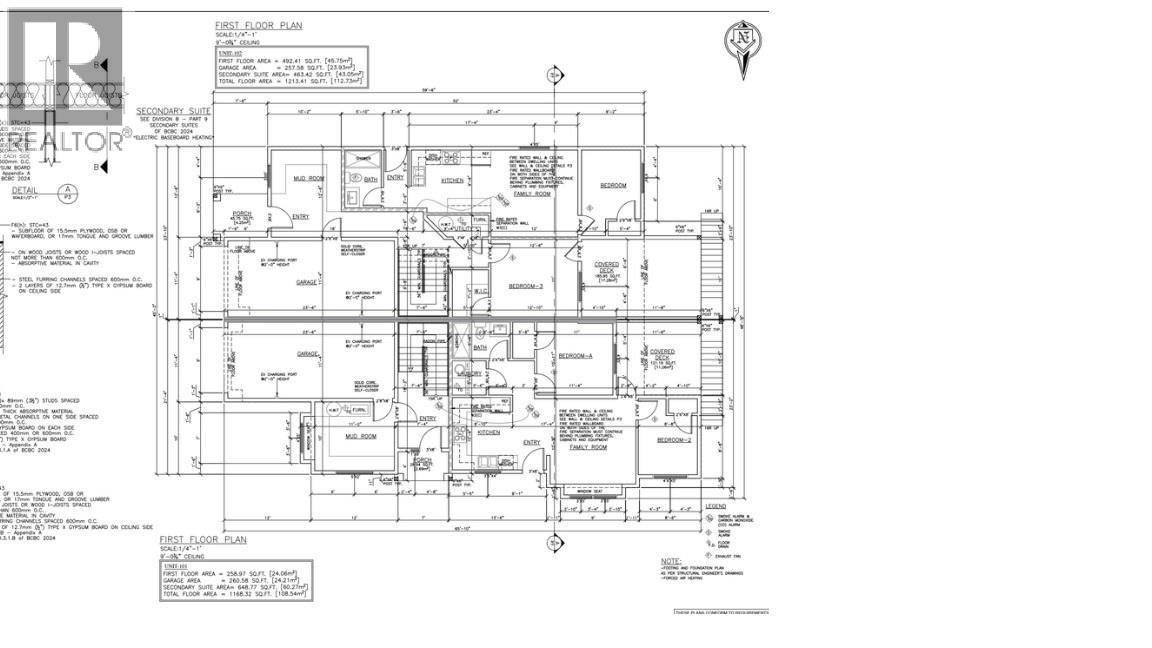
1 BR / 0 BA Single Family – Prince George
Under construction half duplex ready in six months. (id:6769)
Construction Info
Interior Finish:
2161
Parking Covered:
1
Rooms Dimension
Listing Agent:
Darcy Porsnuk
(250) 565-5036
Brokerage:
Royal LePage Aspire Realty
(250) 564-4488