$ 1,400,000 9973 Purcell Drive

This listing presented by Lorne Ayers. Contact Lorne by phone: (250) 860-1100 or email direct here.

Listing Info

Area: Vernon
Property Type: Single Family
Ownership: Freehold
MLS® Number: 10369878
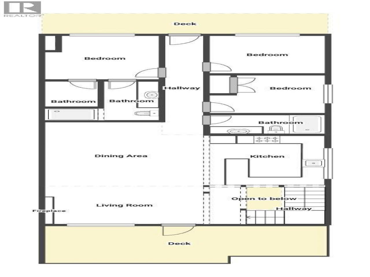
Bedroom: 5
Bathroom: 4
Year Built: 2023
Lot Size: 0.28
Listing Status: Active
List Price: $ 1,400,000

5 BR / 4 BA Single Family – Vernon

This brand-new, custom-built modern 4 bedroom, 3 bathroom duplex offers breathtaking views of the lakes and valley, along with plenty of space to comfortably accommodate friends and family. Upon arrival, enter through the large front door and head up to the second floor, where you’ll find an open-concept TV lounge with semi-private sleeping quarters. Stunning main living area features vaulted ceilings, modern cement walls, and expansive windows that create an inviting space to relax and take in the incredible views after a day on the mountain. Unwind by the fireplace with a good book or prepare a gourmet meal in the upgraded kitchen. Just off the living area/dining room are three additional bedrooms and access to the back deck, where you can soak in your private hot tub and enjoy the scenery. Main level features 2 family rooms, 2 bedrooms, full bathrooms and laundry. There is also a new fourth bedroom located on the lower level. Discover the magic of Silver Star Mountain all year round — 133 runs in the winter and vast, varied terrain for hiking and biking in the summer. Located 26 min to closes grocery store Butcher Boys, and McDonalds, 1hr away from Kelowna International Airport, 29 min away from the shopping center (id:6769)

Construction Info

Interior Finish: 2165
Sewer: Municipal sewage system
Parking Covered: 1
Parking: 5

Rooms Dimension

Listing Agent:

Thor Chinchilla
(250) 309-1742

Brokerage:

Royal LePage Downtown Realty
(250) 545-5371
MLS - Realtor Logo