$ 549,000 #2 222 Temple Street

This listing presented by Lorne Ayers. Contact Lorne by phone: (250) 860-1100 or email direct here.

Listing Info

Area: Sicamous
Property Type: Single Family
Ownership: Strata
MLS® Number: 10372813
Bedroom: 3
Bathroom: 3
Year Built: 2026
Listing Status: Active
List Price: $ 549,000

3 BR / 3 BA Single Family – Sicamous

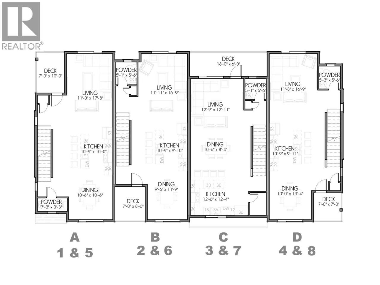
Now offered at a newly reduced price, welcome to #2 at MaraVista Sicamous. A thoughtfully designed 1,436 sq.ft. townhome that blends style, comfort, & functionality in one of Sicamous’ most exciting new developments. This is the one for Couples OR Singles with 2 Primary Bedrooms & features an oversized garage with an 8’ overhead door, measuring 39’ deep x 18’ wide—offering exceptional space for vehicles, storage, tools, & all your recreational gear. Inside, you’ll find a welcoming entry with coat closet, leading upstairs to a bright, open-concept main floor with 9’ ceilings. Designed for entertaining, the layout offers a large eating bar, electric fireplace, dining area, powder room, & a 7’ x 8.5’ outdoor deck for fresh air & summer BBQs. Upstairs, the first primary bedroom is ideally positioned at the back of the home for privacy & quiet, complete with a full ensuite & an enhanced walk-in closet with impressive storage & organization potential. A second Primary bedroom also features its own ensuite, while a versatile den provides flexible space for an office or hobby room. Modern finishings include quartz countertops throughout, white cabinetry, matte black hardware, neutral vinyl plank flooring, off-white walls & trim, plus enhanced soundproofing. The exterior showcases Hardy Plank siding, energy-efficient windows, & a high-efficiency mini-split A/C system for year-round comfort. Fully fenced yard. With only 5% down, Low strata fees at $356.11/month. (id:6769)

Construction Info

Interior Finish: 1463
Flooring: Vinyl
Sewer: Municipal sewage system
Parking Covered: 2
Parking: 3

Rooms Dimension

Listing Agent:

Jessica Klikach
(250) 814-7891

Brokerage:

eXp Realty (Sicamous)
(833) 817-6506
MLS - Realtor Logo