$ 18 #206 2646 Kyle Road

This listing presented by Lorne Ayers. Contact Lorne by phone: (250) 860-1100 or email direct here.

Listing Info

Area: West Kelowna
Property Type: Industrial
Ownership: Leasehold
MLS® Number: 10372888
Year Built: 2020
Listing Status: Active
List Price: $ 18

Place Nearby (within radius 1.5 km)



0 BR / 0 BA Industrial – West Kelowna

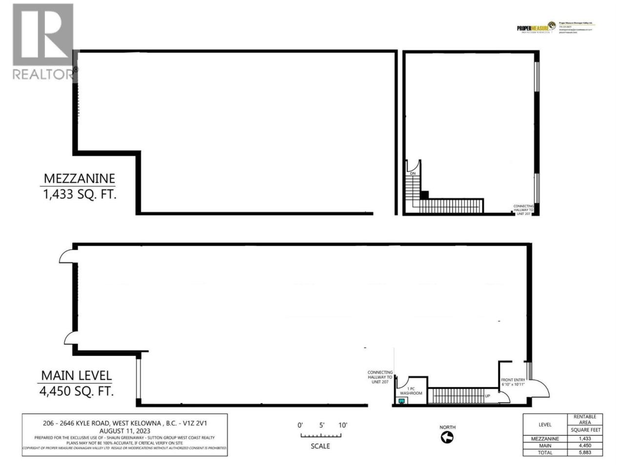
Now available and ready for immediate occupancy in West Kelowna's sought-after Industrial Park, just one block from Highway 97. This prime location offers excellent access to major transportation routes and nearby amenities. Built in 2020, the property is zoned I1 - Light Industrial, allowing for a wide range of uses including warehouse, distribution, trades, brewery and office-based industrial users. Each unit features 4,489 sf of ground- floor warehouse space + 1,396 sf mezzanine, offering efficient and functional layouts ideal for both growing and established businesses. Base lease rates from $19.00 psf. units are also available for sale. (id:6769)

Construction Info

Interior Finish: 5885
Flooring: Concrete
Parking: 5

Rooms Dimension

Listing Agent:

Shaun Greenaway
(604) 902-3888

Brokerage:

Angell Hasman & Associates Realty Ltd.
(604) 305-2420
MLS - Realtor Logo