$ 1,138,000 8011 Aquarius Road

This listing presented by Lorne Ayers. Contact Lorne by phone: (250) 860-1100 or email direct here.

Listing Info

Area: Vernon
Property Type: Single Family
Ownership: Freehold
MLS® Number: 10375079
Bedroom: 4
Bathroom: 3
Year Built: 1998
Lot Size: 0.28
Listing Status: Active
List Price: $ 1,138,000

4 BR / 3 BA Single Family – Vernon

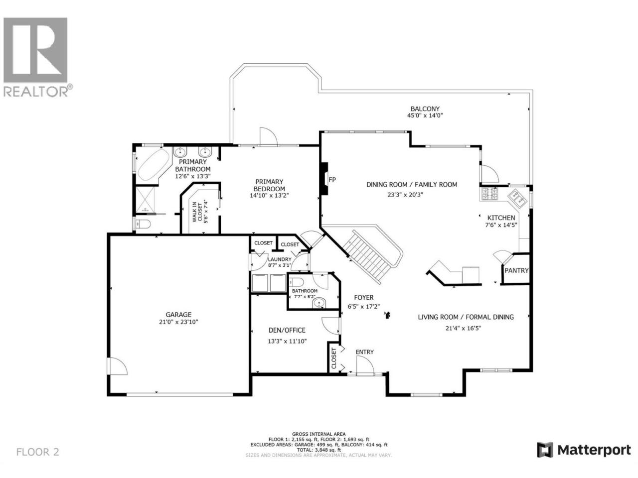
This is 8011 Aquarius Road, a spacious rancher with basement and shop, tucked away at the end of a quiet cul-de-sac on a generous .28-acre lot. Offering over 3000 sqft of living space and southeast-facing views of Okanagan Lake, this home is all about location, lifestyle, and opportunity. The main floor is filled with natural light, featuring multiple living and family spaces, formal dining room, kitchen with breakfast nook, main floor laundry and a versatile den ideal for a home office or hobby room. The primary bedroom opens onto the large deck where you can enjoy sweeping lake views and peaceful mornings year-round. Downstairs, the walk-out basement adds exceptional flexibility with two spacious bedrooms, an additional bedroom or office, family room, and access to the lower patio. A standout feature is the 500 sqft workshop beneath the garage, complete with a 100-amp sub-panel, ideal for trades, hobbies, or extra storage. Outside, the fully deer-fenced backyard offers space to garden, relax, and enjoy the long, sun-filled Okanagan days. There’s ample parking with an attached double garage and additional RV or boat parking. Located within walking distance to beach access and a boat launch, this property is perfectly suited for those who love lake living. Listed below BC Assessment, this home presents an excellent opportunity to secure a well-built property with great bones, outstanding views, and room to personalize. 8011 Aquarius Road is ready for its next chapter. (id:6769)

Construction Info

Interior Finish: 3034
Flooring: Carpeted,Linoleum
Sewer: Municipal sewage system
Parking Covered: 2
Parking: 2

Rooms Dimension

Listing Agent:

Andy Stein
(250) 308-9878

Brokerage:

RE/MAX Vernon
(250) 549-4161
MLS - Realtor Logo