$ 609,000 #92 9845 Eastside Road

This listing presented by Lorne Ayers. Contact Lorne by phone: (250) 860-1100 or email direct here.

Listing Info

Area: Vernon
Property Type: Single Family
Ownership: Strata
MLS® Number: 10376447
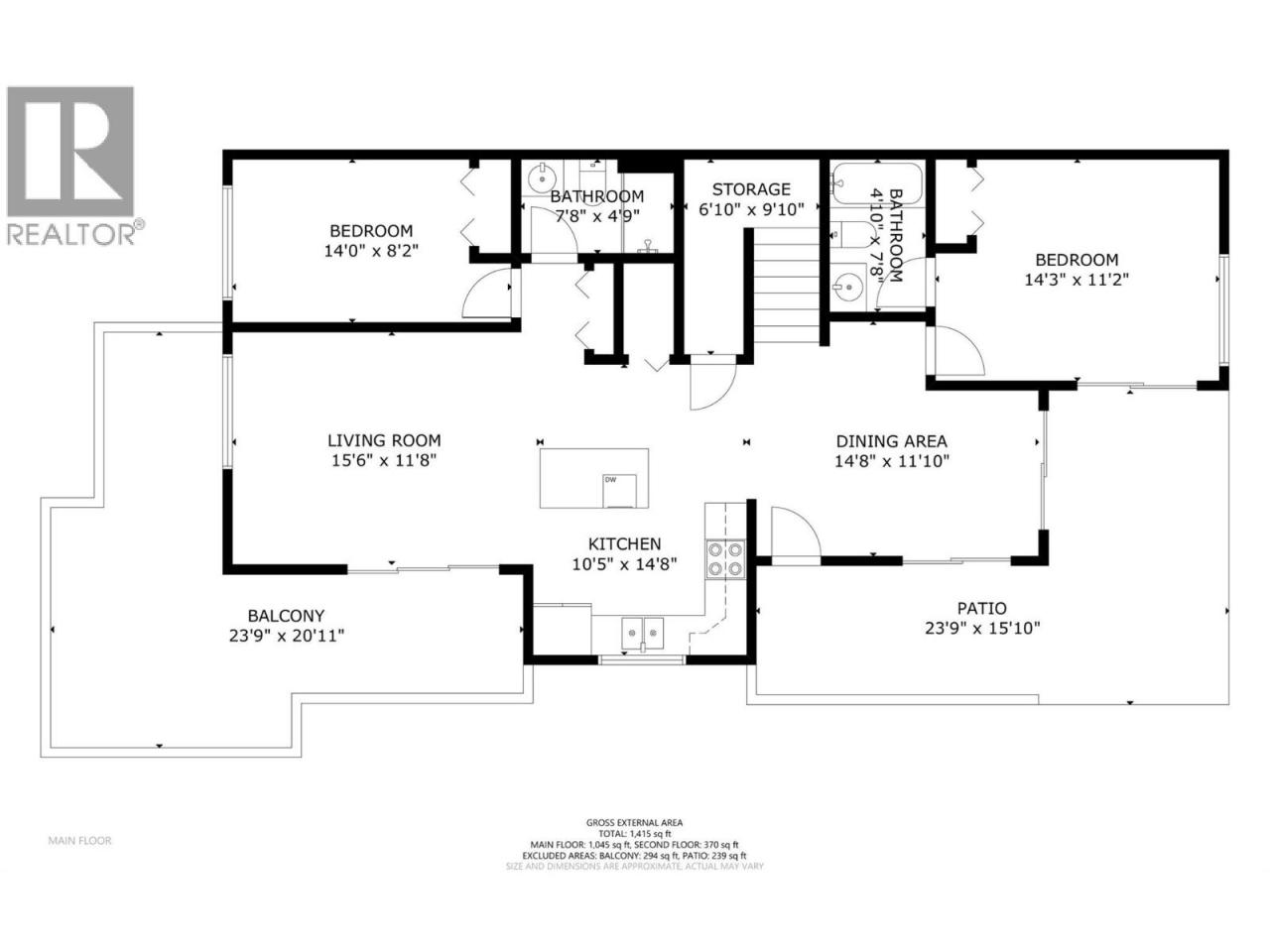
Bedroom: 3
Bathroom: 3
Year Built: 2007
Listing Status: Active
List Price: $ 609,000

3 BR / 3 BA Single Family – Vernon

Welcome to life at The Outback Resort, where everyday living feels like a permanent vacation. This beautifully appointed three bedroom home offers the rare opportunity to own within one of the Okanagan’s most sought after lakefront communities. Inside, soaring ceilings and an open concept layout create a bright and inviting atmosphere, complemented by warm manufactured hardwood flooring throughout. The kitchen is designed for both function and style, featuring stainless steel appliances, abundant white cabinetry, tile backsplash, and a generous island ideal for entertaining. Two bedrooms are located on the main level, including one with its own private ensuite. The south facing deck and welcoming front entrance provide ideal spaces to relax and enjoy the peaceful surroundings, with sliding doors from the living area opening to take in tranquil Trout Lake views. The upper level is dedicated entirely to the primary retreat, complete with a spa inspired ensuite and private deck for peaceful mornings or sunset evenings. Ownership at The Outback extends well beyond the home itself. Residents enjoy two pools with change rooms and showers, four hot tubs, two private beaches, two fire pits, a playground, fitness centre, tennis and pickleball courts, onsite mail service, and seven day per week maintenance, groundskeeping, and snow removal. Surrounded by walking trails and secured behind a gated entrance, this is a lifestyle defined by relaxation, recreation, and connection. Experience resort living at its finest. (id:6769)

Construction Info

Interior Finish: 1415
Flooring: Carpeted,Hardwood,Tile
Sewer: Municipal sewage system
Parking: 1

Rooms Dimension

Listing Agent:

Jessica Christian
(250) 859-6686

Brokerage:

Macdonald Realty
(250) 860-4300
MLS - Realtor Logo