$ 229,900 #1 2805 Westsyde Road

This listing presented by Lorne Ayers. Contact Lorne by phone: (250) 860-1100 or email direct here.

Listing Info

Area: Kamloops
Property Type: Single Family
MLS® Number: 10383924
Bedroom: 2
Bathroom: 1
Year Built: 1980
Listing Status: Active
List Price: $ 229,900

Place Nearby (within radius 1.5 km)



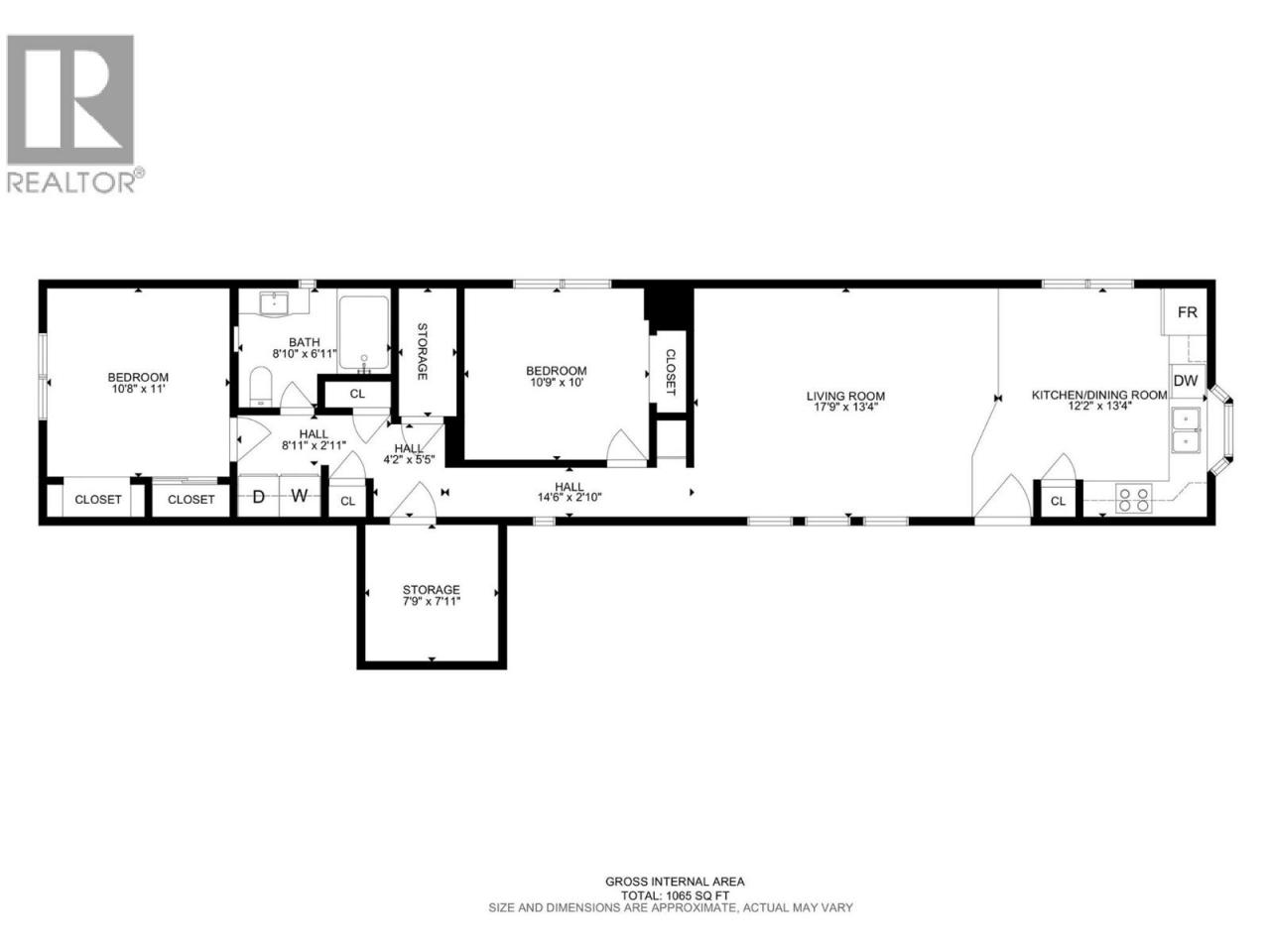
2 BR / 1 BA Single Family – Kamloops

Great floor plan! Spacious over 900 sq.ft. home featuring an open-concept layout with a bright kitchen. Generous living room is perfect for everyday living and entertaining. This well-designed home offers 2 bedrooms and a large, functional bathroom with great overall flow. Recent updates include new wide-plank flooring in the living room, hallway, and a primary bedroom. Situated on the largest lot in the park. Enjoy ample parking, a spacious yard, and a raised garden area at the back. Ideally positioned as the first lot with added privacy on one side next to open space. The fully fenced yard is perfect for children or your dogs. Relax year-round on the large, covered sundeck - rain or shine! This is a fantastic opportunity & must see! Measurements to be verified by buyer. (id:6769)

Construction Info

Interior Finish: 1065
Sewer: Municipal sewage system

Rooms Dimension

Listing Agent:

Rie Takahashi
(250) 851-2000

Brokerage:

RE/MAX Real Estate (Kamloops)
(250) 374-3331
MLS - Realtor Logo